2000 E BAY DRIVE 132LARGO, FL 33771




Mortgage Calculator
Monthly Payment (Est.)
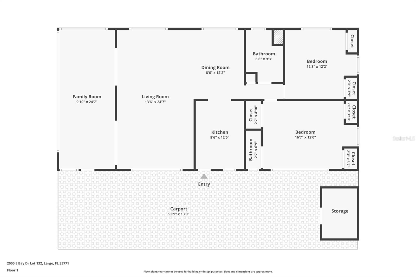
$725One or more photo(s) has been virtually staged. Welcome to effortless, elevated 55+ living—where every detail has already been thoughtfully upgraded for you. This beautifully renovated 2-bedroom, 1.5-bath double-wide sits on a desirable corner lot and truly outshines brand-new models. From the moment you walk in, you’ll notice the bright, open feel, highlighted by stunning quartz countertops throughout, brand-new luxury vinyl plank flooring, and a clean, modern finish from top to bottom. The home features a spacious layout with a walk-in shower, built-in dressers in the bedrooms for added convenience, and an enclosed front Florida room that is now under air—perfect for relaxing year-round. The majority of the furniture stays, making this a true just bring your suitcase and move right in opportunity. Step outside to your sleek epoxy-coated driveway, adding both curb appeal and durability. Enjoy the benefits of an incredibly low $210/month co-op fee that covers water, sewer, trash, lawn care, and pest control—an unbeatable value. The community pool has also been recently renovated, giving you a fresh, resort-style space to enjoy. Golf carts are welcome, adding to the ease and charm of daily living. Even better, you own your land—no lot rent—and pay your own property taxes, offering potential tax advantages at the end of the year. This is more than a home—it’s a lifestyle upgrade. Don’t miss your chance to make it yours. More photos to come soon....
| 30 minutes ago | Listing updated with changes from the MLS® | |
| 7 days ago | Listing first seen on site |
Listing information is provided by Participants of the Stellar MLS. IDX information is provided exclusively for personal, non-commercial use, and may not be used for any purpose other than to identify prospective properties consumers may be interested in purchasing. Information is deemed reliable but not guaranteed. Properties displayed may be listed or sold by various participants in the MLS Copyright 2026, Stellar MLS.
Last checked: 2026-03-31 01:36 PM EDT

Did you know? You can invite friends and family to your search. They can join your search, rate and discuss listings with you.