2052 MAVERICK COURTMINNEOLA, FL 34715

Mortgage Calculator
Monthly Payment (Est.)
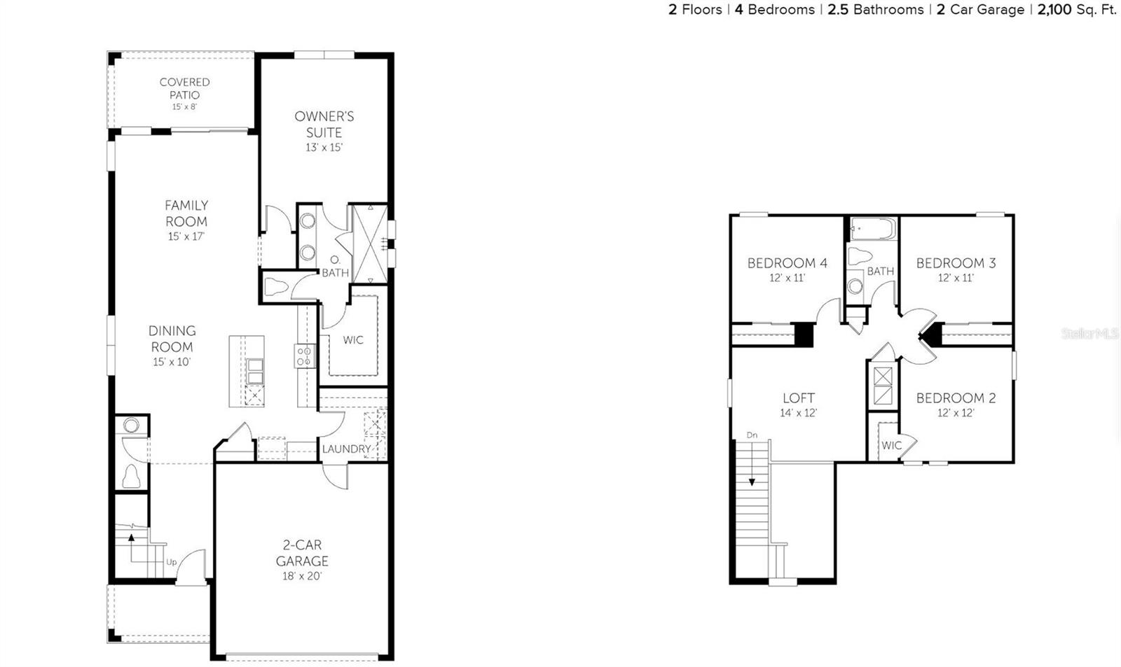
$2,537One or more photo(s) has been virtually staged. Under Construction. The Magnolia floorplan offers a comfortable two-story layout featuring 4 bedrooms and 2.5 bathrooms, ideal for those seeking both space and functionality. The main floor includes a spacious family room adjacent to the dining area, with a covered patio extending from the family room for outdoor enjoyment. The kitchen provides direct access to the dining space, and a separate laundry room sits conveniently near the two-car garage entrance. The primary suite, located on the first floor, includes a private bathroom and a walk-in closet, creating a peaceful retreat. Upstairs, a versatile loft area is surrounded by three additional bedrooms, making it perfect for a cozy lounge or play area. The Magnolia balances everyday convenience with thoughtful design for a welcoming home environment.
| 2 months ago | Listing updated with changes from the MLS® | |
| 7 months ago | Listing first seen on site |
Listing information is provided by Participants of the Stellar MLS. IDX information is provided exclusively for personal, non-commercial use, and may not be used for any purpose other than to identify prospective properties consumers may be interested in purchasing. Information is deemed reliable but not guaranteed. Properties displayed may be listed or sold by various participants in the MLS Copyright 2026, Stellar MLS.
Last checked: 2026-04-09 02:53 PM EDT

Did you know? You can invite friends and family to your search. They can join your search, rate and discuss listings with you.